Softline 82
Ventanas PVC de maxima eficiencia Softline 82
El sistema que no deja pasar ni el ruido ni el frío
Cuando hablamos de ventanas de PVC Softline 82, hablamos de un sistema de alto rendimiento diseñado para ofrecer el máximo aislamiento térmico y acústico, con un diseño que ofrece armonía estética y durabilidad.
Con perfiles de 82 mm de profundidad, triple junta de estanqueidad y refuerzos de acero, este sistema está concebido para protegerte del frío, el calor y el ruido. Su rendimiento se percibe desde el primer uso: el interior mantiene la temperatura estable, la sensación de silencio es inmediata y el ahorro energético se refleja mes a mes.
Si quieres mejorar tu bienestar cotidiano y disfrutar de unas ventanas PVC de máxima eficiencia, no te hace falta adquirir una vivienda de diseño. En nuestra ya larga experiencia, hemos transformado estancias donde antes era necesario recurrir a soluciones improvisadas para combatir el frío o el ruido. Usando los perfiles Softline 82, instalamos el confort para que se quede.
Sobre tu nueva ventana
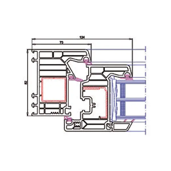
Características de softline 82
Detalle
Diseño invisible, resultados evidentes
Nuestras ventanas eficientes fabricadas con perfiles Softline 82 destacan por su estructura multicámara, su opción de triple acristalamiento y sus finos acabados, disponibles en una amplia gama de colores, que van desde tonalidades espectrales hasta foliados con efecto madera. El sistema permite configuraciones bicolor para adaptarse, tanto al diseño interior como a la fachada del edificio.
Con un coeficiente térmico Uw (o transmitancia térmica global) de hasta 0,67 W/m²K, este sistema garantiza estabilidad térmica y evita el uso excesivo de climatización.
Ventajas técnicas clave:
- 82 mm de profundidad, que establece una mayor barrera térmica.
- Triple Junta (o junta central de triple estanqueidad).
- Compatibilidad con los estándares de construcción de Passivhaus.
- Cumplimiento con el CTE de España (Código Técnico de la Edificación).
- Opciones oscilobatientes y abatibles, que alternan y combinan funcionalidad y estética.
- Integración perfecta con otros sistemas de puertas y ventanas, como Vekamotion 82, Softline 70, Softline 76 o Ekosol. Esto según la necesidad de cada rincón del inmueble.
Cada espacio de tu vivienda puede contar con la solución más adecuada sin perder coherencia estética ni eficiencia global.
Confort permanente, ahorro sostenible
Estas son ventanas de máxima eficiencia concebidas para rendir durante todo el año. El sistema está diseñado para evitar filtraciones, bloquear el ruido exterior y mantener el aire seco y limpio en el interior. Además, gracias a la calidad de sus materiales, el mantenimiento es mínimo.
Instalamos este sistema tanto en obra nueva como en rehabilitaciones térmicas y reformas integrales. Nos adaptamos al proyecto y al entorno, así como al gusto y necesidades del cliente. Y si el costo es una preocupación, definimos contigo la mejor relación entre las bondades de la ventana, sus medidas y sus precios.
Fabricamos cada ventana a medida, optimizando el rendimiento según la orientación, uso del espacio y nivel de ruido del entorno.
Primero debes pensar qué funciones requieres que tenga la ventana o puerta a instalar. Si lo que necesitas es conectar salón y terraza, o abrir grandes vanos sin renunciar al aislamiento, puedes combinar este sistema con soluciones como Vekamotion 82 o la corredera Vekaslide Hi 5, pensadas para ofrecer eficiencia y diseño en grandes superficies acristaladas.
Si tienes dudas, lo mejor es verlo en acción. En Joswal disponemos de numerosos ejemplos de instalaciones de ventanas Softline 82 en toda la Comunidad de Madrid. Viviendas que han ganado en eficiencia, reducido su nivel de ruido y elevado su confort térmico con una sola mejora: cambiar su carpintería exterior.
Te invitamos a comprobar por ti mismo por qué cada vez más clientes eligen Joswal para equipar su hogar con soluciones de alta gama. Porque cuando una ventana está bien diseñada, bien instalada y bien rematada, la diferencia no solo se nota. Se disfruta.
Especificaciones
Prestaciones técnicas
Ventanas 1230 x 1480 (2 hojas)
Transmitancia térmica Uf
1,0 W/m2 K
Permeabilidad al aire
Clase 4
Resistencia al viento
Clase C5
Estanqueidad al agua
E900
Aislamiento acústico (4/12/4/12/4)
36 (-1;-4) dB
Aislamiento acústico (6+6/12/6/12/4+4)
45 (0;-2) dB
Secciones